Accueil > Architecte d'intérieur > Construction & rénovation > Rénovation d'un appartement destiné à la location à Marseille
Retour

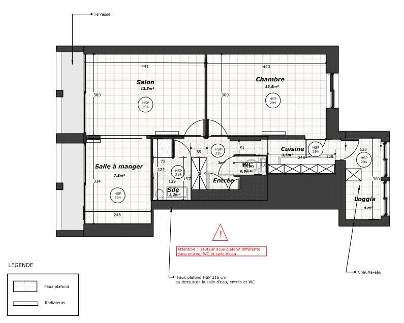
Rénovation d'un appartement destiné à la location à Marseille

M.M souhaite rénover l'appartement dont il vient de faire l'acquisition à Marseille.

Avec sa magnifique vue sur le vieux port, nous avons décidé d'intervertir les pièces fonctionnelles, afin d'agrandir l'espace de vie et d'offrir aux locataires une cuisine moderne et ouverte sur le salon avec une vue imprenable.

Sa verrière apporte une touche contemporaine.

La décoration de l'appartement a été choisie dans les tons de bleus pour rappeler la couleur de la mer méditerranée, et ses touches de bois réchauffent l'ensemble pour amener une ambiance chaleureuse où il fait bon vivre.

Un appartement dorénavant optimisé prêt à être loué!

#amenagementinterieurmarseille #renovationmarseille
Nous écrire
Les champs indiqués par un astérisque (*) sont obligatoires
À découvrir
Salle à manger Aix-en-Provence contemporaine

Rénovation architecture d'intérieur et décoration d'un salon/salle à manger à Aix en Provence

A Aix-en-Provence, le projet de M.G était de moderniser le bas de sa villa, mais aussi d'agrandir les espaces de vie.Alliance entre vintage et moderneEn ...
En savoir plus
aménagement et décoration d'une villa contemporaine à aix-en-provence

Réalisation de la rénovation d'une villa contemporaine à Aix-en-Provence

Découvrez la réalisation en photos!
En savoir plus
Entrée appartement de petite taille

Transformation d'une dépendance abandonnée en appartement T2 à Vitrolles

Vous aussi vous avez un projet d'achat immobilier pour repenser l'utilisation du bien? Faites appel à une architecte d'intérieur.
En savoir plus